Votre devis
en 3 clics

JOTUL F361 ADVANCE

Retour vers les produits

JOTUL F361 ADVANCE

Ce modèle est doté d'une chambre de combustion réfractaire qui illuminera votre salon même le feu éteint. Sa très grande vitre vous permet de profiter du spectacle réconfortant des flammes.

Côté pratique, le poêle à bois Jøtul F 361 Advance est doté d'un espace de rangement dans le compartiment bas du poêle à bois.

- Classe énergétique : A

Energie
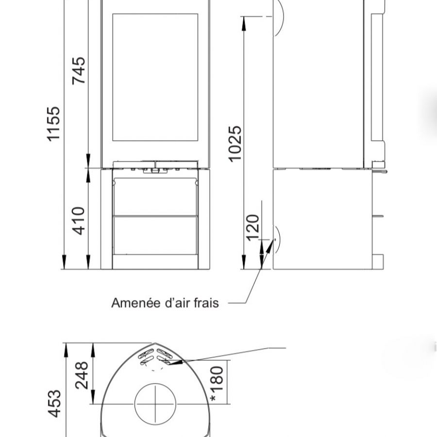
Dimensions HxLxP 115 x 44 x 45cm
Vitrage 1 face
Garantie constructeur 25 ans
Réglementation thermique RT2012
Couleurs
Type Poêles à Bois
Puissance 6kW
Rendement 78%
Taille de bûches 33cm
Fabricant Jotul
Energie Bois
Ø évacuation des fumées 150mm
Ø de la prise d'air 100mm
- Pierre ollaire sur le dessus du poêle
- Kit de raccordement pour prise d'air directe
- Plaque de sol spécifique en verre ou en acier noir

Jotul est l’un des plus anciens fabricants de poêles, inserts et cheminées.

Avec cet héritage Norvégien, Jotul combine depuis 160 ans son expertise technique avec l’art de dompter le froid.

Leader sur le marché, du chauffage au bois Jotul offre une garantie unique de 25 ans sur le corps de chauffe de ses appareils en fonte.

Certains modèles emblématiques de la marque ont remporté des prix de Design. Sobres et fonctionnels, les poêles Jotul s'intègrent à tous les intérieurs, modernes ou traditionnels.

Origine : Norvège

Infos & catalogues