M Design Luna Diamond 1000 DV

La Cheminée Bois Luna Diamond 1000 DV est le plus grand foyer bois double face verticale proposé actuellement par M-Design. Les foyers bois de la gamme Luna Diamond, en version double face verticale, sont dotés de deux vitres et de deux pares feux escamotables et d’un intérieur au choix en acier ou en fonte. Cette cheminée bois Luna Diamond 1000DV installée dans votre intérieur, vous permet de réaliser deux ambiances distinctes, profitez ainsi de la chaleur des flammes, de part et d’autre de votre pièce.

Deux versions sont disponibles pour cette cheminée :
- LUNA DIAMOND 1000DV version manuelle
- LUNA DIAMOND Plus 1000DV version motorisé

La série des cheminées Luna Diamond Plus est équipée d'un module de commandes automatique appelé "SWIPE". Cette application permet d’affiner le fonctionnement de votre cheminée bois Luna Diamond Plus. Grâce à ce module, vous pouvez informer votre appareil de la qualité du bois utilisé, piloter l’ouverture de la vitre et du pare feu, régler le ventilateur et le tirage et bien plus encore… Tout cela en quelques touches sur le boitier de commandes ou bien directement via votre tablette ou smartphone.

Ces cheminées bois ont une porte escamotable automatique, une combustion optimale, un réglage précis de la combustion, une deuxième porte décorative automatique : pare-feu, un cadre solide de 8 mm et des parois en acier ou en fonte.

Le SWIPE est conçu de manière à tirer le maximum de chaque bûche. Le processus de combustion est tellement efficace que le rendement atteint des sommets avec plus de 80%. On utilise donc moins de bois, pour un résultat similaire, avec à la clé beaucoup moins d’émissions. Le réglage précis du feu rend cette cheminée bois unique. L’allumage est particulièrement rapide et l’entretien relativement limité grâce au système autonettoyant associé à une combustion optimale.

 

Type Foyers à Bois
Fabricant Mdesign
Energie Bois
Type De 7kW à 16kW
Rendement 75%
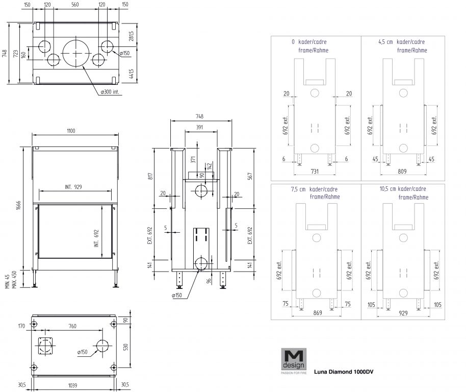
Ø évacuation des fumées 300mm
Ø de la prise d'air 150mm
Dimensions HxLxP 171 x 110 x 74cm
Largeur de vitre 92cm
Taille de bûches 50cm
Vitrage Double face
Garantie constructeur 8 ans
Options Intérieur fonte
Cadres de finition
Swipe (contrôle par smartphone ou tablette,contrôle de l'éclairage,ouverture manuelle et automatique du pare feu et porte escamotable, réglage silencieux du ventilateur,réglage de température le swipe fonctionne comme thermostat)
Raccordement latérale de l'air de combustion
Réglementation thermique RT2012

Mdesign

Bois ou Gaz, M Design propose une superbe collection de produits avec les technologies les plus sophistiquées.

Mdesign produit des poêles et foyers qui sont synonymes de fiabilité, d'efficacité, d'élégance et de confort d'utilisation.

Ses appareils disposent d’un système de combustion très performant et d’un système optimal d’auto nettoyage de la vitre. Ses cheminées et foyers se caractérisent par ailleurs par un confort d’utilisation exceptionnel et un design très séduisant.

Origine : Belgique

Un projet ? Une question ? Un devis concernant ce produit ?

 

N'hésitez pas !

Faites votre demande de devis ou de renseignement directement ici...
 
Notre équipe vous recontactera très rapidement et vous aidera à évaluer votre projet  au plus près de votre budget

Je voudrais un devis sur ce produit

  • (4.6860ms) SELECT * FROM parameter order by name asc
  • (1.2310ms) SELECT * FROM product WHERE id=674 LIMIT 1
  • (0.8350ms) SELECT * FROM product_vendor WHERE id=4 LIMIT 1
  • (0.8630ms) SELECT * FROM article WHERE code='PRODUCT_DETAIL' LIMIT 1
  • (0.9110ms) SELECT * FROM product_cat WHERE id=7 LIMIT 1
  • (0.9020ms) SELECT * FROM product_cat WHERE id=16 LIMIT 1
  • (0.6590ms) select * from menu WHERE type!='I' AND parentId=1 ORDER BY position ASC
  • (0.6360ms) select * from menu WHERE type!='I' AND parentId=36 ORDER BY position ASC
  • (0.7640ms) select * from menu WHERE type!='I' AND parentId=11 ORDER BY position ASC
  • (0.6650ms) select * from menu WHERE type!='I' AND parentId=56 ORDER BY position ASC
  • (3.4150ms) SELECT * FROM article WHERE code='COMMUNICATION' LIMIT 1
  • (0.8540ms) SELECT * FROM communication WHERE isAvailable=1 order by position ASC LIMIT 12
  • (5.6980ms) UPDATE communication SET hits=(hits+1) WHERE id=1
  • (1.5650ms) select * from menu WHERE type!='I' AND parentId=2 ORDER BY position ASC
  • (0.8830ms) select * from menu WHERE type!='I' AND parentId=3 ORDER BY position ASC
  • (0.7260ms) select * from menu WHERE type!='I' AND parentId=4 ORDER BY position ASC
  • (0.8900ms) SELECT * FROM article WHERE code='FOOTER_TEXT' LIMIT 1