Votre devis
en 3 clics

MDESIGN LUNA DIAMOND 900 CL/CR

Retour vers les produits

MDESIGN LUNA DIAMOND 900 CL/CR

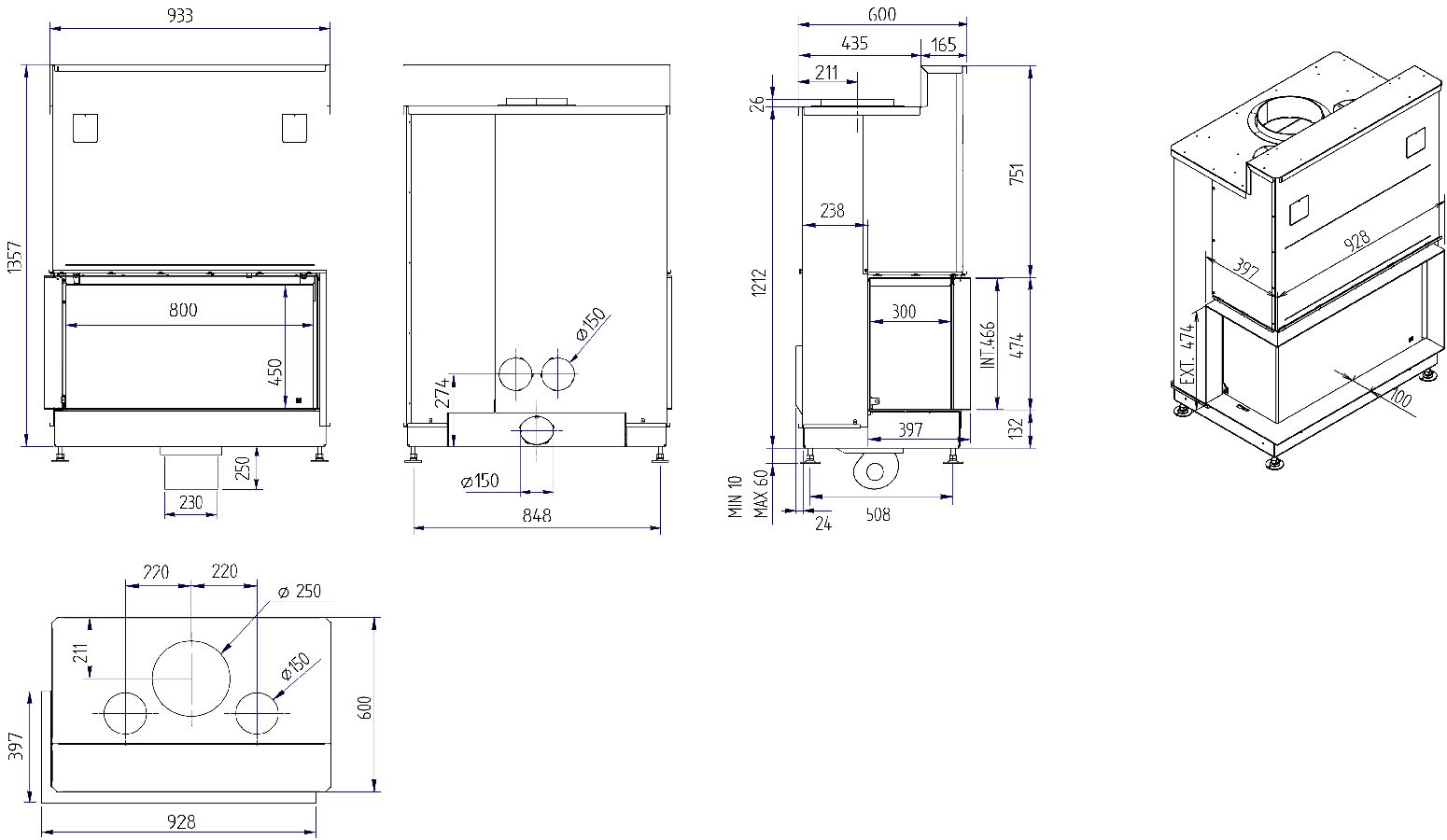
La Cheminée Bois Luna Diamond 900 CL ou CR est un foyer bois avec un coin vitré de M-Design. Ces modèles de foyers bois de la gamme Luna Diamond, sont conçus d’une vitre escamotable avec un angle droit (CR) ou gauche (CL) et d’un intérieur au choix en acier ou en fonte. Le pare feu n’est pas disponible pour les modèles avec coin. La finition de la vitre est d’une pureté absolue. La vitre est conçue en une seule pièce, en verre plié. Les Luna Diamond avec coin sont livrés avec un cadre standard, intérieur de finition de 6,8 centimètres.

Ces appareils ne peuvent être équipés du module de commande Swipe pour rendre votre foyer bois intelligent. Son utilisation reste manuelle.

Les Cheminées Luna Diamond Bois de M-Design ont une combustion optimale, grâce à un système breveté conçu de manière à tirer le maximum de chaque bûche. Le processus de combustion est tellement efficace que le rendement atteint des sommets avec plus de 80%. On utilise donc moins de bois pour un résultat similaire, avec à la clé beaucoup moins d’émissions. Le réglage précis du feu rend ces foyers bois uniques. L’allumage est particulièrement rapide et l’entretien relativement limité grâce au système autonettoyant associé à une combustion optimale. 

Energie
Dimensions HxLxP 140 x 90 x 60cm
Vitrage 2 faces en angle
Garantie constructeur 8 ans
Type Foyers à Bois
Puissance De 9kW à 14.8kW
Rendement 85%
Fabricant Mdesign
Energie Bois
Ø évacuation des fumées 200/250mm
Largeur de vitre 80cm
Intérieur fonte
Cadres de finition
Ventilateur avec pièce spéciale
Raccordement latérale de l'air de combustion

Bois ou Gaz, M Design propose une superbe collection de produits avec les technologies les plus sophistiquées.

Mdesign produit des poêles et foyers qui sont synonymes de fiabilité, d'efficacité, d'élégance et de confort d'utilisation.

Ses appareils disposent d’un système de combustion très performant et d’un système optimal d’auto nettoyage de la vitre. Ses cheminées et foyers se caractérisent par ailleurs par un confort d’utilisation exceptionnel et un design très séduisant.

Origine : Belgique

Infos & catalogues